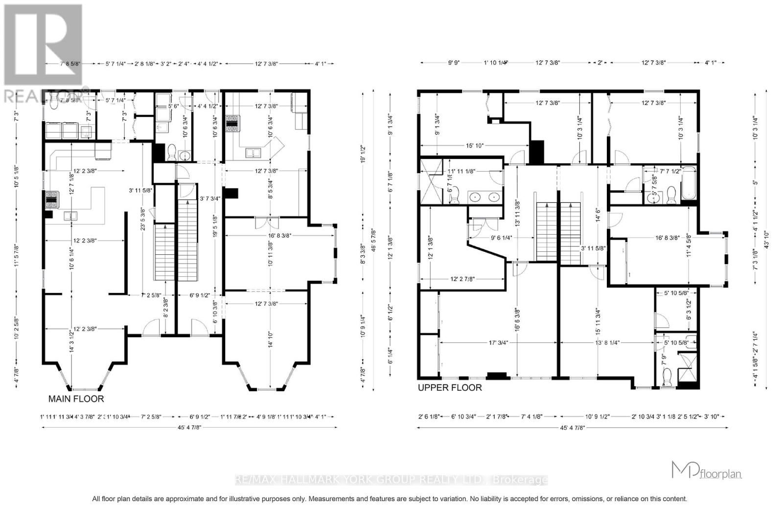
Whether you're dreaming of extra rental income, space for family, or a home with character, this property delivers. Enjoy the convenience of main street living, the beauty of mature grounds, and the practicality of a 4-car garage-perfect for car lovers, contractors, or hobbyists. A special property with endless potential.Discover the perfect blend of character, income potential, and convenience in this beautifully maintained century home, legally converted into a duplex. Set on over 1 acre in a highly visible main street location, this property is ideal for investors, multigenerational living, or buyers seeking added income.This charming home features two self-contained units, each with its own kitchen, living spaces, and private entrances. Original architectural details are complemented by tasteful updates throughout.Outside, enjoy a sprawling property with endless possibilities-gardens, recreational space, future expansion, (buyer to verify zoning). A rare 4-car detached garage provides abundant storage, workshop space, or hobby use.Don't miss this unique opportunity to own a landmark property with exceptional versatility and long-term value. (id:4069)
Address
390 MAIN STREET
List Price
$1,950,000
Property Type
Single Family
Type of Dwelling
Single Family
Transaction Type
Sale
Area
Ontario
Sub-Area
King (schomberg)
Bedrooms
7
Bathrooms
5
Floor Area
3500 - 5000 Sq. Ft.
Lot Size
93.7 x 538 FT Sq. Ft.
MLS® Number
N12609480
Listing Brokerage
RE/MAX HALLMARK YORK GROUP REALTY LTD.
Basement Area
N/A (Unfinished)
Postal Code
L0G1T0
Zoning
Residential R1B,R!B SPA
Site Influences
Park, Place of Worship, View
Features
Ravine, Rolling, Backs on greenbelt, Carpet Free, In-Law Suite











































The Real Edge